Before: Building work on the house was already underway when I was invited to produce a design for this garden and major restructuring of the garden had already taken place with the original level of what was a steep site reduced by over a metre to accommodate a significant extension to the house – a new and very imposing 2.5m+ retaining wall at the rear plus two sets of steps to the garden were already in place and the design had to accommodate these. The wish list from the client was extensive and included lawn, dining area, water feature, greenhouse, space for a hammock and chess………………….
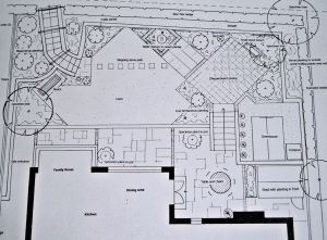
Design Solution: The design was developed at a 45° angle to the house to maximise space, give a feeling of greater depth and reduce the impact of the high wall at the rear. The lawn was positioned to give a feeling of green and open space from the house. Main upper paved area designed as a multifunctional space with chequerboard paving design doubling as a chess board. Raised Cretan terracotta water feature provided a focal point with its brick surround providing occasional seating. A row of pots alongside the steps from the house provides a decorative feature along the top of the wall by the greenhouse. Planting: chosen to provide year round interest, fragrance, rich colours and climbers to grow up the trellis panels on the rear wall.
- Steps softened by planting
- View from above
- Main paved area doubles as chessboard to maximise the use of the limited space
- Pots of tulips line the top of the steps





